Winnaar Buitenstate Award 2025!

Denekamperstraat 53

  • € 588.000 k.k.
  • Ootmarsum
  • 886m²
  • 6
  • 158m²
  • C

  • Karakteristiek jaren ’30 huis op 886 m² kavel, uitzonderlijk veel ruimte en privacy.
  • Volledig geïsoleerd inwoongedeelte (2005), ideaal voor mantelzorg, inwoning of B&B.
  • Goed verduurzaamd met 10 zonnepanelen, HR++ glas, spouwmuurisolatie en airco.
OM101830-12214-Denekamperstraat-53,-Ootmarsum-254907164

Omschrijving

Sfeervol vrijstaand wonen aan de Denekamperstraat in Ootmarsum.

Aan de Denekamperstraat 53 in Ootmarsum staat dit karakteristieke vrijstaande jaren ‘30 woonhuis gelegen op een prachtige en diepe kavel van maar liefst 886 m². Een huis die door de jaren heen met zorg is onderhouden en die door de ruimte, indeling en mogelijkheden aantrekkelijk is voor uiteenlopende woonwensen.

In 2005 is het huis aan de achterzijde uitgebouwd met een volledig geïsoleerd, levensloopbestendig woongedeelte met eigen voorzieningen. Dit maakt het huis ideaal voor een groot gezin, mantelzorg, inwoning, een B&B of gewoon extra leefruimte. De grote tuin nodigt uit om te dromen: of je nu kiest voor een moestuin, een siertuin of een voetbalveld voor de kinderen, alles is hier mogelijk door de royale oppervlakte.

Het huis is bovendien uitstekend verduurzaamd. Zo beschikt het huis over tien zonnepanelen uit 2022, is de spouwmuur in 2024 nog volledig geïsoleerd en zijn de kunststof kozijnen met draai-kiep ramen en HR++ beglazing in 2006 geplaatst. In 2023 is er een airco geïnstalleerd die zowel kan koelen als verwarmen, wat het wooncomfort verder verhoogt.

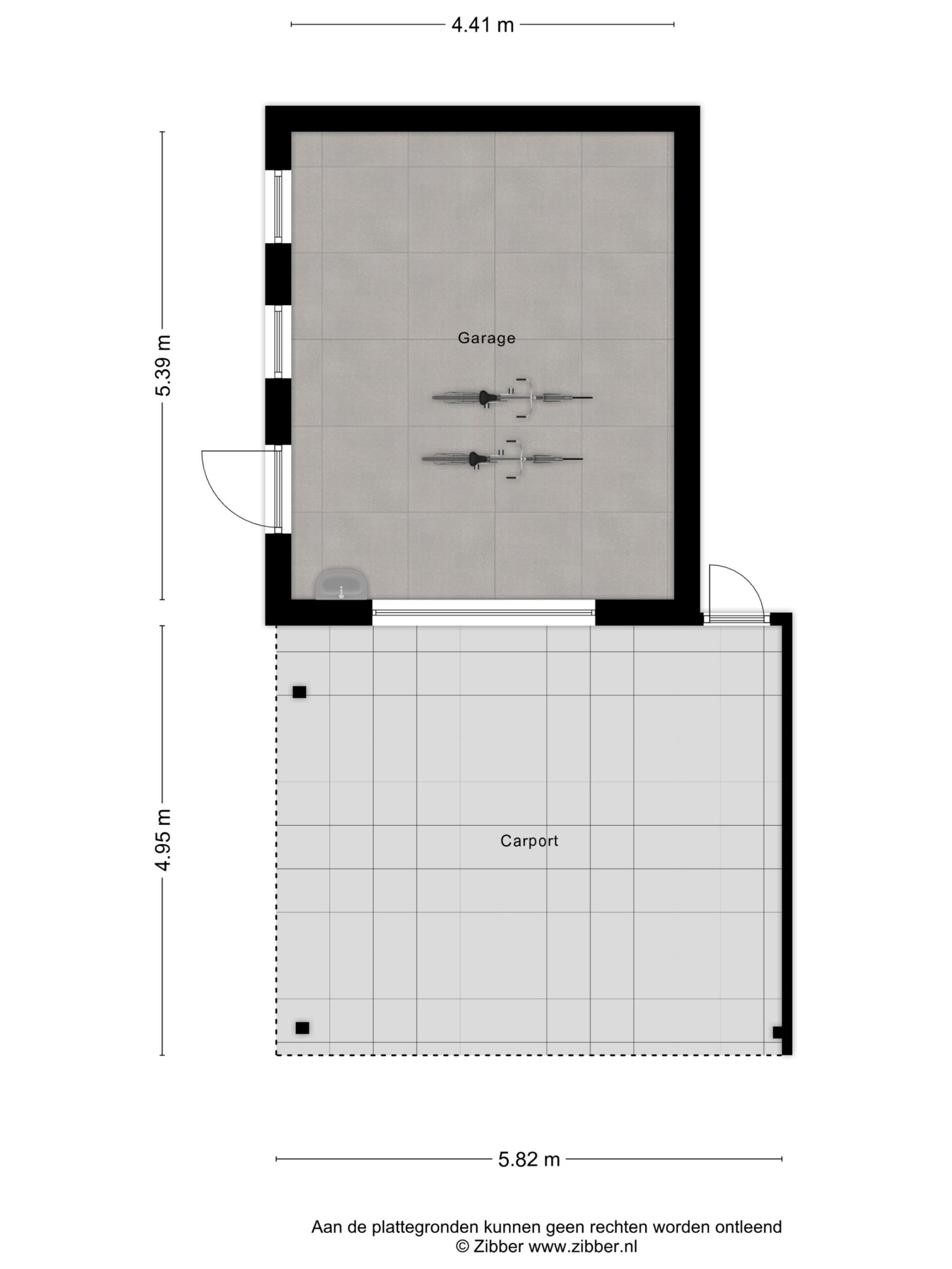
Ook buiten is alles tiptop in orde. In 2006 is de ruime, vrijstaande garage nieuw gebouwd, voorzien van een zolder en een elektrische roldeur. De brede oprit biedt volop ruimte voor meerdere auto’s.

Het huis ligt op korte afstand van winkels, supermarkten en andere voorzieningen, waardoor je hier zowel rustig als centraal woont. Denekamperstraat 53 is een huis met karakter, comfort en eindeloos veel mogelijkheden voor de toekomst.

Geïnteresseerd? Maak dan snel een afspraak, we laten u het huis en de omgeving graag zien.

Bouwjaar: 1935, uitgebouwd in 2005
Woonoppervlak: ca. 158 m2
Inhoud: ca. 672 m3
Kavel: 886 m2

Indeling begane grond:
– entree met hal, meterkast
– straatgerichte woonkamer
– woonkeuken voorzien van vloerverwarming, inductiekookplaat, vaatwasser, koelkast, combi oven
– hal met vrijdragend toilet en fonteintje

Indeling eerste verdieping:
– via vaste trap te bereiken overloop
– drie slaapkamers allen voorzien van vaste kasten
– ruime badkamer voorzien van daglicht, ligbad, douchecel, vrijdragend toilet, wastafel en aansluitingen witgoed

Indeling tweede verdieping:
– via vlizotrap te bereiken na-geïsoleerde royale bergzolder

Inwoongedeelte

Indeling begane grond:
– entree met hal, vaste schuifkast, vrijdragend toilet met fonteintje en aansluitingen witgoed
– keuken met gaskookplaat, vaatwasser en koelkast
– woonkamer voorzien van tuindeuren
– slaapkamer
– badkamer met vrijdragend toilet, wastafel en inloopdouche

Indeling eerste verdieping:
– via vlizotrap te bereiken royale bergzolder

Bijgebouw:
– royale vrijstaande geïsoleerde garage met zolder, voorzien van elektrische roldeur, elektra, water en wasbak
– carport
– houten tuinschuur

Bijzonderheden
– karakteristiek vrijstaand woonhuis met inwoongedeelte
– vrijstaande garage met zolder
– royale kavel van maar liefst 886 m²
– door de jaren heen goed onderhouden
– volop mogelijkheden
– aan de achterzijde uitgebouwd met levensloopbestendig woongedeelte
– goed geïsoleerd, energielabel C
– woonoppervlak en inhoud conform NEN 2580 (meetrapport aanwezig)
– in de koopovereenkomst wordt o.a. de ouderdomsclausule opgenomen
– bij koop is een waarborgsom/bankgarantie van 10% van de koopsom vereist!

Kenmerken

  • Vraagprijs € 588.000 k.k.
  • Status Beschikbaar
  • Aanvaarding In overleg
  • Soort woonhuis Eengezinswoning
  • Soort bouw Woonhuis
  • Bouwjaar 1935
  • Soort dak Mansarde dak
  • Woonoppervlakte 158 m2
  • Perceeloppervlakte 886 m2
  • Inhoud 672 m3
  • Externe bergruimte 35 m2
  • Overige inpandige ruimte 23 m2
  • Aantal kamers 6
  • Aantal badkamers 2
  • Aantal woonlagen 3 woonlagen
  • Voorzieningen Mechanische ventilatie, buitenzonwering, airconditioning, glasvezel kabel, zonnepanelen, natuurlijke ventilatie
  • Energielabel C
  • Isolatie Dakisolatie, muurisolatie, vloerisolatie, hr glas
  • Verwarming Cv ketel, vloerverwarming gedeeltelijk
  • Warm water Cv ketel
  • Cv-ketel Gas
  • Kadastergemeente Ootmarsum
  • Hoofdtuin Achtertuin
  • Oppervlakte hoofdtuin 532 m2
  • Ligging hoofdtuin Noord
  • Parkeerfaciliteiten Op eigen terrein
  • Garage Garage met carport

Een uniek vrijstaand huis met sfeer én toekomstmogelijkheden; hier kun je wonen zoals jij dat wilt, met ruimte in overvloed.

DSC09978-Enhanced-NR-Edit
Frank Morskieft Makelaar RMT

Het huis in beeld

Plattegrond

Anouk 2

Vind u een persoonlijke afspraak prettiger?

Wilt u meer weten over onze werkwijze bij aan- of verkoop? Of heeft u behoefte aan persoonlijk advies van een specialist? De koffie staat klaar!

Informatie over de buurt

Burgerlijke staat

Gehuwd
Ongehuwd
Gescheiden
Verweduwd
  • Gehuwd
  • Ongehuwd
  • Gescheiden
  • Verweduwd

Leeftijd in gemeente

0 - 15 jaar
15 - 25 jaar
25-45 jaar
45 - 65 jaar
65+ jaar
  • 0 - 15 jaar
  • 15 - 25 jaar
  • 25 - 45 jaar
  • 45 - 65 jaar
  • 65+ jaar

Leeftijd buurtbewoners

0 - 15 jaar
15 - 25 jaar
25-45 jaar
45 - 65 jaar
65+ jaar
  • 0 - 15 jaar
  • 15 - 25 jaar
  • 25 - 45 jaar
  • 45 - 65 jaar
  • 65+ jaar
Deel dit item

Een bezichtiging inplannen

Realworks koppeling. Formulier voor contactaanvragen.

"*" geeft vereiste velden aan

Een afspraak plannen

Vul onderstaand formulier in en wij nemen snel contact met u op

Dit veld is bedoeld voor validatiedoeleinden en moet niet worden gewijzigd.
Deel dit item